南通方圣石化设备有限公司主要开发生产S系列静态混合器、喷射器、减温器,VJG系列精细过滤器、SB系列泵用过滤器,以及消声器、视镜、阻火器、呼吸阀等九大类。
   静态混合器
   蒸汽加热设备系列
   动态混合设备
   过滤设备
   一、管道过滤器
     1、SBY过滤器
     2、SBT过滤器
     3、SBL过滤器
     4、SBV过滤器
     5、SBW过滤器
   二、自洁式过滤器
     1、ZJD自洁式过滤器
     2、ZJD刷式自洁式过滤器
     3、ZJD吸吮扫描式过滤器
     4、ZJDL反冲洗自洁式过滤器
     5、ZJDP导流自洁式过滤器
     6、ZJD自洁式过滤器电控装置
     7、使用指南
   三、手动清洗过滤器
   四、精细过滤器
     1、ZJF过滤器
     2、常见滤芯式精细过滤器
     3、袋式精细过滤器
   五、空气过滤器
     1、FSGI型送风空气过滤器
     2、FSGII型吹风空气过滤器
   活性碳过滤器
   七、盘式过滤器
   八、FSD消气过滤器
   九、滤件系列
     1、VJGM型金属滤芯
     2、VJGM型非金属滤芯
     3、滤袋系列
   纸浆专用设备
   管用专用小型设备
   油罐附件系列
   煤气管道排水器
 

南通方圣石化设备有限公司
地址:启东市汇龙镇台角工业园区
邮编:226200
电话:0513-83639880
传真:0513-83639099
在线咨询:
微信:15851380122
微信:15365547782
http://www.ntfssh.com
E-mail:fs@ntfssh.com

产品介绍 首页 >> 产品介绍
SBL过滤器
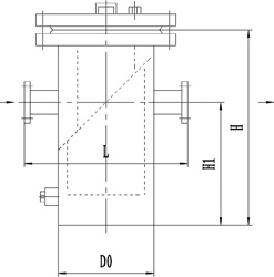
SBLⅠ直通法兰连接篮式过滤器
(1) FBLⅠ直通法兰连接单滤筒篮式过滤器:DN25-300、PN≤5.0MPa,(见图七、表8)。
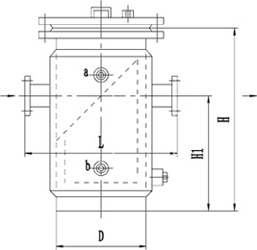
(2) FBLⅠM直通法兰连接双滤筒篮式过滤器:DN25-300、PN≤5.0MPa,(见图八、表8)。
图七
图八
表8
SBLⅠF直通法兰连接带夹套篮式过滤器
DN25-200、PN≤5.0MPa,(见图九、表9)
图九
表9
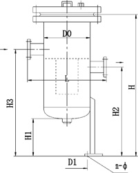
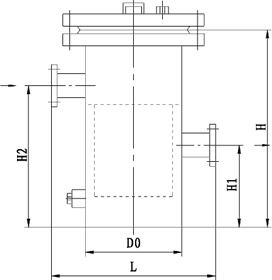
SBLⅡ型直通支承法兰连接篮式过滤器
DN350-500、PN≤5.0MPa,(见图十、表10)
图十
表10
SBLⅢ高低接管法兰连接篮式过滤器
(1) SBL Ⅲ高低接管单滤筒法兰连接篮式过滤器:DN25-300、PN≤5.0MPa,(见图十一、表11)。
(2) SBL ⅢM高低接管双滤筒法兰连接篮式过滤器:DN25-300、PN≤5.0MPa,(见图十二、表11)。
图十一
图十二
表11
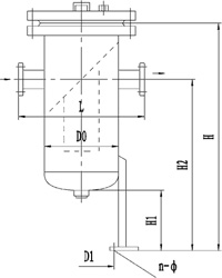
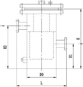
SBLⅣ高低接管支承法兰连接篮式过滤器
DN350-500、PN≤5.0MPa,(见图十三、表12)
图十三
表12
 
南通方圣石化设备有限公司 地址:启东市汇龙镇台角工业园区 邮编:226200 混合器|汽水混合器
电话:0513-83639880 传真:0513-83639099