南通方圣石化设备有限公司主要开发生产S系列静态混合器、喷射器、减温器,VJG系列精细过滤器、SB系列泵用过滤器,以及消声器、视镜、阻火器、呼吸阀等九大类。
   静态混合器
   蒸汽加热设备系列
   动态混合设备
   过滤设备
   一、管道过滤器
     1、SBY过滤器
     2、SBT过滤器
     3、SBL过滤器
     4、SBV过滤器
     5、SBW过滤器
   二、自洁式过滤器
     1、ZJD自洁式过滤器
     2、ZJD刷式自洁式过滤器
     3、ZJD吸吮扫描式过滤器
     4、ZJDL反冲洗自洁式过滤器
     5、ZJDP导流自洁式过滤器
     6、ZJD自洁式过滤器电控装置
     7、使用指南
   三、手动清洗过滤器
   四、精细过滤器
     1、ZJF过滤器
     2、常见滤芯式精细过滤器
     3、袋式精细过滤器
   五、空气过滤器
     1、FSGI型送风空气过滤器
     2、FSGII型吹风空气过滤器
   活性碳过滤器
   七、盘式过滤器
   八、FSD消气过滤器
   九、滤件系列
     1、VJGM型金属滤芯
     2、VJGM型非金属滤芯
     3、滤袋系列
   纸浆专用设备
   管用专用小型设备
   油罐附件系列
   煤气管道排水器
 

南通方圣石化设备有限公司
地址:启东市汇龙镇台角工业园区
邮编:226200
电话:0513-83639880
传真:0513-83639099
在线咨询:
微信:15851380122
微信:15365547782
http://www.ntfssh.com
E-mail:fs@ntfssh.com

产品介绍 首页 >> 产品介绍
ZJDLⅢ型反冲洗式自洁式过滤器
一、功能与用途
  ZJDLⅢ型反冲洗式自洁式过滤器广泛用于冶金、化工、石油、造纸、医药、食品、采矿、电力、城市给水领域。诸如工业废水,循环水的过滤,乳化液的再生,废油过滤处理,冶金行业的连铸水系统、高炉水系统,热轧用高压水除鳞系统。是一种先进、高效且易操作的全自动过滤装置。
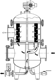
二、设备结构与工作原理
  ZJDLⅢ型反冲洗式自洁式过滤器由壳体、多元滤芯、反冲洗机构、电控箱、减速机、电动阀门和差压控制器等部分组成。壳体内的横隔板将其内腔分为上、下两腔,上腔内配有多个过滤芯,这样充分利用了过滤空间,显著缩小了过滤器的体积,下腔内安装有反冲洗吸盘。工作时,浊液经入口进入过滤器下腔,又经隔板孔进入滤芯的内腔。大于过滤芯缝隙的杂质被截留,净液穿过缝隙到达上腔,最后从出口送出。
  本过滤器滤芯采用高强度的Johnson楔形滤网,通过压差控制、定时控制自动清洗滤芯。当过滤器内杂质积聚在滤芯表面引起进出口压差增大到设定值,或定时器达到预置时间时,电动控制箱发出信号,驱动反冲洗机构。当反冲洗吸盘口与滤芯进口正对时,排污阀打开,此时系统泄压排水,吸盘与滤芯内侧出现一个相对压力低于滤芯外侧水压的负压区,迫使部分净循环水从滤芯外侧流入滤芯内侧,吸附在滤芯内壁上的杂质微粒随水流进入吸盘内并从排污阀排出。特殊设计的Johnson网使得滤芯内部产生喷射效果,任何杂质都将被从光滑的内壁上冲走。当过滤器进出口压差恢复正常或定时器设定时间结束后,电机停止运转,电动排污阀关闭。整个过程中,物料不断流,反洗耗水量少,实现了连续化、自动化生产。
正常过滤状态
滤芯反冲洗状态
工作原理图
三、本机特点

  1、本过滤器减速机构采用NRV型减速机,外壳采用优质铝合金压铸结构,散热性好、噪声小、重量轻、承载能力大;
  2、密封装置采用CVA62.1-85标准增强四氟双端面密封结构,密封性能可靠、使用寿命长、承压能力强;
  3、顶部设有自动排气阀,结构紧凑、启闭灵敏;
  4、差压取样部分采用D520/7DD型切换差可调式差压控制器,信号反馈正确;
  5、滤芯采用高强度Johnson滤网,缝隙精确率高、有效过滤面积大、压降小,反冲洗效率高;
  6、滤芯花板采用304不锈钢,与反冲洗吸盘工作界面进行镜面处理;
  7、反冲洗吸盘采用增强聚四氟乙烯结构及反冲洗吸盘自整机构,能确保吸盘与滤芯花板的长效密封,增强了反冲洗效果;
  8、本过滤器电气控制部分采用P L C可编程控制器,清洗模式采用差压控制、定时控制及手动控制并联模式,清洗程序采用定时定位模式,反洗耗水量小,清洗彻底;
  9、电控箱采用立柱式全透屏户外防水型结构;

四、主要技术参数
  1、公称直径:150、200、250、300、350、400、500、600、 5、切换差调节范围:0.035~0.15MPa
         700、800、900、1000、1200 6、反冲洗时间设定范围:1~24h
  2、设计压力:1.0MPa(另外有1.6MPa和2.5MPa可供选用) 7、压力损失:0.02~0.1MPa
  3、过滤精度:(1)冲孔板结构:≥1000μm (2)复合编织 8、工作方式:手动、自动
         网结构:≥25μm (3)Johnson楔形网:≥50μm 9、电机参数:380V 50HZ
  4、差压设定值调节范围:0.02~0.16MPa 10、电机功率:0.15~2.2KW
ZJDLⅢ反冲洗式自洁式过滤器
五、产品外形尺寸
  注:本表外形尺寸按左上图( 封头结构)
 
南通方圣石化设备有限公司 地址:启东市汇龙镇台角工业园区 邮编:226200 混合器|汽水混合器
电话:0513-83639880 传真:0513-83639099