南通方圣石化设备有限公司主要开发生产S系列静态混合器、喷射器、减温器,VJG系列精细过滤器、SB系列泵用过滤器,以及消声器、视镜、阻火器、呼吸阀等九大类。
   静态混合器
   加热设备系列
   动态混合设备
   过滤设备
   纸浆专用设备
   SKL型浆氯静态混合器
   浆氯分配器
   LH型氯水分散混合器
   LQ-1468型液氯汽化器
   LYZ型氯气逆止罐
   LP型氯化喷射器
   胺液回收器
   KAGZ型高效组合在线胺液过滤装置
   新型高效石化净化/聚结分离装置
   预过滤器
   硫封器
   填料式管道自动补偿器
   高效有机蒸汽吸附装置
   KDPB型低压脉冲喷吹袋式除尘器
   KDPB390系列低压脉冲长袋除尘器
   KDPB390系列低压脉冲长袋除尘器
   KDPB970系列低压脉冲长袋除尘器
   管用专用小型设备
   油罐附件系列
   煤气管道排水器
 

 南通方圣石化设备有限公司
 地址:启东市汇龙镇台角工业园区
 邮编:226200
 电话:0513-83639880
 传真:0513-83639099
 在线咨询:
 微信:15851380122
 微信:15365547782
 http://www.ntfssh.com
 E-mail:fs@ntfssh.com

产品介绍 首页 >> 产品介绍
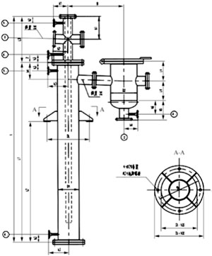
硫 封 器
一、概述
  LF系列硫封器是我公司和相关炼油行业研究所及设计院针对国内产口的缺点,吸收国外同类产品的优点所转化的一种新型硫封,可广泛用于炼油、化工、天然气、钢铁、化肥等行业的硫磺回收装置。
二、产品特点
  1、液硫入口为带“V型”过滤网的“十”型夹套结构,既可对液硫进行过滤防止因系统设备内的大颗粒固体(如脱落在衬里或腐蚀物)堵塞设备或管道;又可避免在液硫入口堵塞时的在线疏通。
  2、液硫入口内硫管部分为可拆卸式,实现开工时装填固硫快速建立硫封,避免开工未建立硫封造成有一丝一毫毒气的泄露;同时可在停工时对内硫管腐蚀的检修或者堵塞时的清理。
  3、硫封筒底部采用可拆卸盲法兰结构,实现停工时底部觉积物的清理。
  4、可视缓冲器可实现液硫流动状态的在线监测,使操作者随时监测液硫入口及出口系统是否流动畅通。检查口可实现硫封筒出口的在线疏通。
  5、该硫封器采用全夹套式蒸汽保温,高点注气、低点排水,实现无“死角”保温。
  6、液硫入口及硫封筒出口管采用3°坡度,便于液硫流动。
三、型号标注
四、操作条件 五、说明
  硫封筒及缓冲器;液硫
  温度:350℃(max)
  夹套:蒸汽
  温度:≤200℃(max)
  压力:1.0MPa(max)
  1、根据用户的要求调整液硫管道的规格、开口方位等。
  2、根据用户要求调整液硫管道入口的坡度。
  3、法兰的连接尺寸采用HG20615标准:亦可按用户要求采用其它法兰标准。
六、外型尺寸(见结构简图)
 
南通方圣石化设备有限公司 地址:启东市汇龙镇台角工业园区 邮编:226200 混合器|汽水混合器
电话:0513-83639880 传真:0513-83639099
点击这里给我发消息