南通方圣石化设备有限公司主要开发生产S系列静态混合器、喷射器、减温器,VJG系列精细过滤器、SB系列泵用过滤器,以及消声器、视镜、阻火器、呼吸阀等九大类。
   静态混合器
   加热设备系列
   动态混合设备
   过滤设备
   纸浆专用设备
   SKL型浆氯静态混合器
   浆氯分配器
   LH型氯水分散混合器
   LQ-1468型液氯汽化器
   LYZ型氯气逆止罐
   LP型氯化喷射器
   胺液回收器
   KAGZ型高效组合在线胺液过滤装置
   新型高效石化净化/聚结分离装置
   预过滤器
   硫封器
   填料式管道自动补偿器
   高效有机蒸汽吸附装置
   KDPB型低压脉冲喷吹袋式除尘器
   KDPB390系列低压脉冲长袋除尘器
   KDPB390系列低压脉冲长袋除尘器
   KDPB970系列低压脉冲长袋除尘器
   管用专用小型设备
   油罐附件系列
   煤气管道排水器
 

 南通方圣石化设备有限公司
 地址:启东市汇龙镇台角工业园区
 邮编:226200
 电话:0513-83639880
 传真:0513-83639099
 在线咨询:
 微信:15851380122
 微信:15365547782
 http://www.ntfssh.com
 E-mail:fs@ntfssh.com

产品介绍 首页 >> 产品介绍
预 过 滤 器
一、概述
  VKPF系列过滤器主要作为聚结分离器、精过滤器、流量计、控制阀等的保护性前置过滤器。VKPF系列过滤器适用于流体中颗粒污染较严重的场合,安装在聚结分离器之前,能有效地延长聚结滤芯的使用寿命;安装在流量计、控制阀前时,可有效地拦截尺寸较大的机械杂质,防止其发生机械磨损及机械卡死。VKPF系列过滤器可用于航煤、柴油、汽油、透平油、液压油、润滑油、以及溶剂油的过滤也可以用于天然气、炼厂气、氮气、空气等气体的过滤,并可用于工业循环水、冷却水的过滤,能有效的去除流体中的悬浮物,铁绣等颗粒杂质。VKPF系列过滤器用途十分广泛,在气体与液体介质中均可使用,是颗粒污染物的绝对克星,流体净化的有效武器。
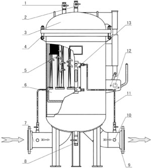
二、工作原理及各部分名称
  预过滤的介质由过滤器入口进入壳体腔内,从滤芯的外部流向滤芯的内部,固体杂质被滤芯挡在滤芯的外面,较大的颗粒沉积到壳体的底部,较小的颗粒被滤芯捕获,滤后的介质在滤芯托盘内汇集后从过滤器出口流出。随着固体颗粒在滤芯外表面及滤层内部沉积数量的增加,滤芯外部与内部的压差会逐渐增高,这将由压差计显示出来,当压差达到0.1MPa时,说明滤芯已被堵塞,应该更换或清洗。过滤器进出口均设有取样阀,可随时进行取样对流体进行污染分析。
1、安全阀接口
2、排空阀
3、过滤器上盖
4、O型密封圈
5、滤芯
6、滤芯托盘
7、过滤器进口
8、排污阀
9、过滤器出口
10、取样口
11、引压管
12、手动杠杆开盖装置
13、压差计
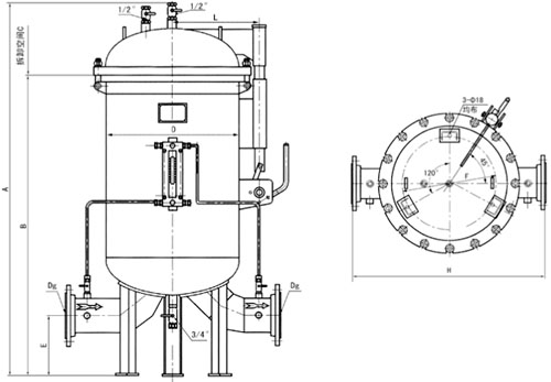
三、主要技术参数 四、型号说明
  初始压差:0.02MPa
  最大允许工作压差:0.1MPa
  最高工作温度:80℃
  过滤精度:1、3、5、10、15、25、40、80、100μm...可选
  滤芯结构强度:>0.5MPa
五、设计选型及安装尺寸
六、外形尺寸表
  ★注:我公司可根据用户要求进行特珠设计制造
 
南通方圣石化设备有限公司 地址:启东市汇龙镇台角工业园区 邮编:226200 混合器|汽水混合器
电话:0513-83639880 传真:0513-83639099
点击这里给我发消息